不同功能的房间对噪音的要求不尽相同,应根据具体噪音要求选择合适的室内机型,以下为典型场所的室内机型形式:

风机噪音是空调系统的主要噪音之一,过大的机外静压可转换成风量,表现为风机转速、风管、风口风速的大幅提高,加大了风机机械噪音、气流传递噪音及风口振动噪音等等问题,严重时直接影响到空调系统的正常使用。
空调风机的噪音以中、低频噪音为主,高频噪音为辅,但人体对高频噪音较敏感,在大风量机组风系统中,应加装宽频消声能力较好的消声器(静压箱),具体消声器消声能力见下表:

气流噪音是由风道内气流流速和压力的变化,以及对管壁和障碍物的作用而引起的,过高的风速极易引起气流噪音,不同噪音要求场所风速设计应符合下表要求:

风速≤8m/s时,噪音在风管中0.3-0.6dB/m衰减;风速>8m/s时,噪音在风管中衰减不计;
风速高的风道不得穿越噪音要求高的房间;

机组进出风口的气流受到风机较大压力的影响会产生强烈的扰力,与突然改变方向的风管管壁碰撞会产生不稳定的气流,影响风机的风量及产生较大的振动和噪音,破坏了室内环境噪音要求,送回风管设计应满足下表要求:

在噪音要求较高的场所回风管也需安装消声弯头;
直管段为“出风口后风管直管距离”。
吊顶式空调机组采用直接下回风比较常见,机组较大的气流和风机噪音易通过回风口传递室内,且回风口的风速过大时,还会产生风口振动噪音,影响环境噪音,大风量机组应按以下方法进行回风处理:
风量<8000m³/h,静压<200pa的吊顶式空调机组可采用直接回风,后制作回风消声箱,图a;
风量8000 ~15000 m³/h,静压200~350 pa的吊顶式空调机组可采用翼型回风,后制作消声箱,图b;
风量≥20000m3/h,静压≥350pa的空调机组宜设空调机房,后制作回风消声箱及消声弯头,图c。

同一个风管系统相邻房间因风管距离短、管件衰减不够或风管内噪音吸收不够,存在串音的现象,尤其是空调不送风时尤为严重,以下为几种常用串音处理方法:

水管的振动噪音,是由设备的振动传递和水流动产生的扰动冲击造成,其由设备振动频率、介质扰动频率及管道受冲击的自振叠加而成,水泵、空调设备与水管之间均需加装软接。

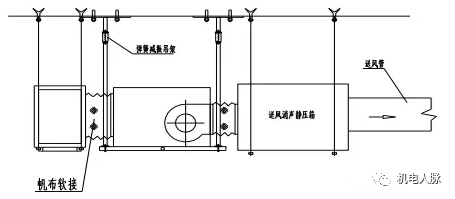
风管的振动噪音由设备振动的传递和气流产生的扰动冲击造成,其由设备振动频率、介质扰动频率及管道受冲击自振叠加而成,风管/静压箱与机组之间均需加装软接。

空调室外机噪音是不可避免的,其噪音主要有振动、风机和机械噪音组成,噪音影响直接与空调能力、风机风量和安装的位置相关联,应根据不同场所的噪音要求进行空调主机机型及位置的选择。以下为几类典型场所的噪音要求,主机运行时的噪音应控制在此之内,否则应采取相应的减噪措施。

空调主机振动主要产生振动传递和固体传声,放置于屋顶的主机会导致楼板的低频二次结构噪音,其穿透力较强,对人员的休息和工作造成不同程度的影响,不同场所的减振应按下表方法执行:

吊顶式空调机组振动主要是由风机转动产生,通过管道和支吊架传递给楼层结构,楼板受到其振动扰力影响亦会产生低频二次结构噪音,机组吊装应采取安装弹簧吊杆、增加减振橡胶、风管间增加帆布软接等减振措施,具体可参照下图:

空调机房的噪音源为空调风机机械性振动和气流噪音,但机房内噪音经过墙体和楼板的多次反射形成混响声,多种噪音相互叠加比相同声源在室外的噪音高出20dB(A),空调机房应采取相应的减噪措施,下表为机房不同类型噪音及处理方法:


冷却塔选型应根据环境噪音的要求选择,当本体噪音大于环境噪音要求时,应采取相应的减噪措施。不同场所冷却塔形式选择:

冷却塔不同类型噪音及处理方法:

水泵振动噪音主要由电动机机械噪音、叶轮振动、水流噪音和气蚀噪音形成的,不同形式水泵振动传递方向不一样,应根据现场实际情况选择相应的水泵,对于水泵不同噪音采取相应的措施,以下为空调常用水泵形式及适宜安装场所:

水泵噪音类型及处理方法:

*注:有较高噪音要求时可采用屏蔽泵,噪音可降低10-25dB(A)。